UBND xã Thường Tín ban hành Thông báo số 421/TB-UBND về việc niêm yết công khai, lấy ý kiến của cơ quan, tổ chức, cá nhân và cộng đồng dân cư có liên quan đối với Đồ án Quy hoạch chi tiết tỷ lệ 1/500 Khu đô thị thể thao Olympic – Khu B 1. Nội […]
Lưu trữ Danh mục: App tra quy hoạch Hà Nội
Phương án mới trục Đại lộ cảnh quan sông Hồng Tải tài liệu tại đây: https://drive.google.com/drive/folders/15sEGhJ_K6Z_Ta0w23igiRbgJxCQGHjSV?usp=sharing Phụ lục 1: Phương án vị trí, hướng tuyến Trục đại lộ cảnh quan sông Hồng Stt Hạng mục Phương án 1 (theo Thông báo số 726/TB-VP ngày 11/11/2025) Phương án 2 (theo Thông báo số 787/TB-VP ngày 04/12/2025) […]
Bản đồ quy hoạch 1/500 khu B Olympic Khu vực Thường Tín, Tam Hưng, Thượng Phúc, Dân Hòa nằm tại vị trí chiến lược phía Nam Thủ đô Hà Nội, giữ vai trò là cửa ngõ giao thông và logistic quan trọng kết nối trung tâm Hà Nội với các tỉnh phía Nam như Hà […]
UBND xã Thường Tín ban hành Thông báo số 421/TB-UBND về việc niêm yết công khai, lấy ý kiến của cơ quan, tổ chức, cá nhân và cộng đồng dân cư có liên quan đối với Đồ án Quy hoạch chi tiết tỷ lệ 1/500 Khu đô thị thể thao Olympic – Khu B 1. Nội […]
Ngày 8/12/2025 tại Hội trường UBND phường Định Công, UBND phường đã tổ chức Hội nghị lấy ý kiến cộng đồng dân cư đối với Đồ án Quy hoạch chi tiết tỷ lệ 1/500 Bãi đỗ xe, Trung tâm thương mại Hoàng Mai – Giáp Bát. Thực hiện Thông báo số 789/TB-VP ngày 05/12/2025 của […]
LUẬT QUY HOẠCH Căn cứ Hiến pháp nước Cộng hòa xã hội chủ nghĩa Việt Nam đã được sửa đổi, bổ sung một số điều theo Nghị quyết số 203/2025/QH15; Quốc hội ban hành Luật Quy hoạch. Chương I QUY ĐỊNH CHUNG Điều 1. Phạm vi điều chỉnh Luật này quy định hệ thống quy […]
Bước vào giai đoạn Hà Nội điều chỉnh quy hoạch đến 2045–2065, nhu cầu tra cứu quy hoạch Hà Nội 2026 để mua bán, xây dựng, chuyển mục đích sử dụng đất… ngày càng cấp thiết. Tuy nhiên, nhiều người vẫn loay hoay không biết tra ở đâu, công cụ nào dễ dùng, dữ liệu […]
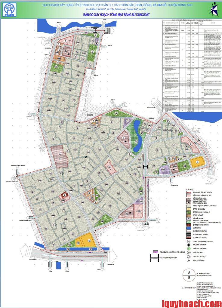
Quyết đinh số 15973/QĐ-UBND ngày 21/12/2022 Về việc phê duyệt Quy hoạch 1/500 khu dân cư thôn Bắc, Đoài, Đông xã Thiên Lộc Theo quy hoạch phân khu đô thị N4, phía Đông khu vực nghiên cứu phần thuộc ô quy hoạch IV.7-3 có các chức năng: đất nhóm nhà ở hiện có (cải tạo […]
Quyết định số 2969/QĐ-UBND ngày 24/7/2008 phê duyệt Quy hoạch chi tiết xây dựng tỷ lệ 1/500 Khu đô thị mới Kim Chung Tải bản đồ quy hoạch tại: https://drive.google.com/file/d/1rmr4oYskarjMbADYHUmjYYAW0oJuLjSR/view?usp=sharing Tra chi tiết quy hoạch khu đô thị mới Kim Chung









