Quyết đinh số 15973/QĐ-UBND ngày 21/12/2022 Về việc phê duyệt Quy hoạch 1/500 khu dân cư thôn Bắc, Đoài, Đông xã Thiên Lộc

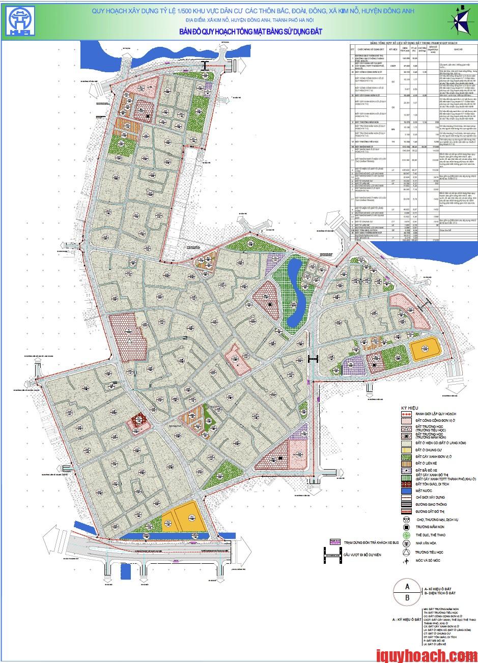
Theo quy hoạch phân khu đô thị N4, phía Đông khu vực nghiên cứu phần thuộc ô quy hoạch IV.7-3 có các chức năng: đất nhóm nhà ở hiện có (cải tạo chỉnh trang), đất nhóm nhà ở xây dựng mới, đất cây xanh thể dục thể thao thành phố,khu ở, đất giao thông,…
Căn cứ theo đề xuất của địa phương tại văn bản số 34/UBND-ĐC ngày 23/02/2021 của UBND xã Kim Nỗ về việc tổng hợp ý kiến các cơ quan, tổ chức, cá nhân và công đồng liên quan đối với Đồ án Quy hoạch chi tiết tỷ lệ 1/500 khu vực dân cư thôn Thọ Đa, thôn Bắc, thôn Đông, thôn Đoài xã Kim Nỗ, huyện Đông Anh trong đó có nội dung “Riêng đối với thôn Đông, xã Kim Nỗ có ý kiến về việc cơ quan lập quy hoạch nên nghiên cứu điều chỉnh để tuyến đường từ đường Hoàng sa kết nối qua thôn Đông, không vào khu đất giãn dân hiện có. Bởi khu đất này khi lập dự án để cấp đất giãn dân đã xin chỉ giới đường đỏ, các hộ được cấp đất đều đã được cấp GCN QSD đất và nhiều hộ dân đã xây dựng nhà ở kiên cố. Do vậy kính mong cơ quan chức năng, đơn vị tư vấn nghiên cứu để người dân yên tâm ổn định cuộc sống.”.
Căn cứ theo ý kiến của phòng Quản lý đô thị huyện Đông Anh tại văn bản số 698/BC-QLĐT ngày 20/12/2021 huyện và thông báo số 140/TB-QLĐT ngày 02/02/2021 về Kết luận của Hội đồng thẩm định Quy hoạch xây dựng trên địa bàn thuộc thẩm quyền của UBND huyện Đông Anh về Quy hoạch chi tiết tỷ lệ 1/500 khu vực dân cư thôn Bắc, Đoài, Đông, xã Kim Nỗ, huyện Đông Anh có nội dung “Đề xuất vi chỉnh tuyến đường phía Đông Bắc thôn Đông tránh khu dân cư hiện có được cấp đất giãn dân năm 2012 và cập nhật khu giãn dân thành khu dân cư hiện có (khu đất giãn dân thôn Đông được Viện QHXD Hà Nội cấp chỉ giới đường đỏ năm 2005, được UBND huyện phê duyệt quy hoạch tổng mặt bằng năm 2009, UBND huyện cấp đất giãn dân đã ăn ở ổn định, hiện đang quy hoạch đường giao thông và đất cây xanh đô thị)”.
Sau khi phối hợp với phòng quản lý đô thị huyện Đông Anh rà soát, đánh giá, khu đất thuộc thôn Đông theo ý kiến tại các văn bản trên trong quy hoạch phân khu đô thị N4 được quy hoạch thành chức năng đất cây xanh, thể dục thể thao thành phố, khu ở. Tuy nhiên khu vực trên đã được xác định là khu vực nhà ở giãn dân nông thôn đã được bàn giao mốc giới cho xã Kim Nỗ tại biên bản bàn giao mốc giới 02/2012, đến nay người dân đang sinh sống ổn định. Theo ý kiến của phòng Quản lý đô thị Huyện Đông Anh tại văn bản số 698/BC-QLĐT ngày 20/12/2021 huyện và thông báo số 140/TB-QLĐT ngày 02/02/2021 về Kết luận của Hội đồng thẩm định Quy hoạch xây dựng trên địa bàn thuộc thẩm quyền của UBND huyện Đông Anh về Quy hoạch chi tiết tỷ lệ 1/500 khu vực dân cư thôn Bắc, Đoài, Đông, xã Kim Nỗ, huyện Đông Anh đề xuất khu vực đất giãn dân thông Đông là chức năng đất nhóm nhà ở hiện có cải tạo chỉnh trang, điều chỉnh hình dáng ô đất cây xanh thể dục thể thao thành phố,khu ở để đảm bảo diện tích, chỉ tiêu theo quy hoạch phân khu đô thị N4.

Tham gia nhóm Zalo Quy hoạch Hà Nội để tải bản đồ quy hoạch
Mở Zalo, bấm quét QR để tham gia nhóm trên điện thoại
Bấm vào đây để tham gia nhóm