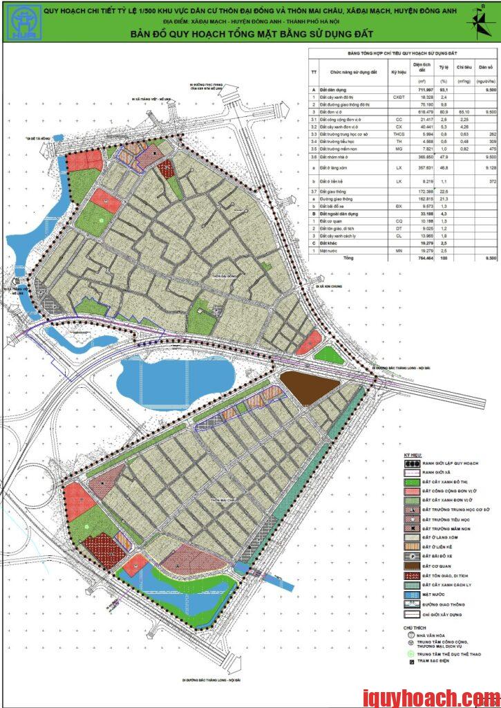
Quy hoạch 1/500 thôn Đại Đồng, thôn Mai Châu xã Thiên Lộc
Lưu trữ Danh mục: Quy hoạch xã Thiên Lộc
Quy hoạch 1/500 Khu vực dân cư cầu Thăng Long xã Thiên Lộc Quyết định số 15475/QĐ-UBND ngày 27/12/2024
Quy hoạch chi tiết tỷ lệ 1/500 thôn Đại Lộ, Sáp Mai xã Thiên Lộc
Quyết đinh số 13748/QĐ-UBND ngày 04/11/2022 quy hoạch 1/500 thôn Mạch Lũng Link tải bản đồ quy hoạch thôn Mạch Lũng: https://drive.google.com/drive/folders/13osgiK9wrth07r3ePkl_jl7Q9fGCR4-Z?usp=sharing
ỦY BAN NHÂN DÂN THÀNH PHỐ HÀ NỘI VIỆN QUY HOẠCH XÂY DỰNG HÀ NỘI HANOI URBAN PLANNING INSTITUTE – HUPI THUYẾT MINH TỔNG HỢP QUY HOẠCH CHI TIẾT TỶ LỆ 1/500 KHU DÂN CƯ THÔN BẦU, XÃ KIM CHUNG, HUYỆN ĐÔNG ANH ĐỊA ĐIỂM: XÃ KIM CHUNG – HUYỆN ĐÔNG ANH – THÀNH […]
Quy hoạch 1/500 thôn Nhuế – Xã Thiên Lộc Link tải bản đồ quy hoạch 1/500 thôn Nhuế: https://drive.google.com/drive/folders/1JxXP5MIoOUaYtROWprC3E2XAVsfY5zxz?usp=sharing
Danh sách quy hoạch tại xã Thiên Lộc, Thành phố Hà Nội Link tải bản đồ quy hoạch xã Thiên Lộc: https://drive.google.com/file/d/1IsgGCW71tyQ4GzACNVE9ztu8Rz1fuFXZ/view?usp=sharing Quy hoạch 1/500 khu tái định cư X2 Kim Chung 2. Quy hoạch Khu đô thị mới Kim Chung tỷ lệ 1/500 3. Quy hoạch 1/500 thôn Nhuế xã Thiên Lộc 4. Quy […]
ỦY BAN NHÂN DÂN THÀNH PHỐ HÀ NỘI Số: 5711/QĐ-UBND CỘNG HOÀ XÃ HỘI CHỦ NGHĨA VIỆT NAM Độc lập – Tự do – Hạnh phúc Hà Nội, ngày19 tháng 11 năm 2025 QUYẾT ĐỊNH Về việc phê duyệt Đồ án Quy hoạch chi tiết Khu đô thị mới G19, tỷ lệ 1/500. […]







