Quy hoạch 1/500 thôn Đại Đồng, thôn Mai Châu xã Thiên Lộc
Lưu trữ thẻ: quy hoạch 1/500 xã thiên lộc
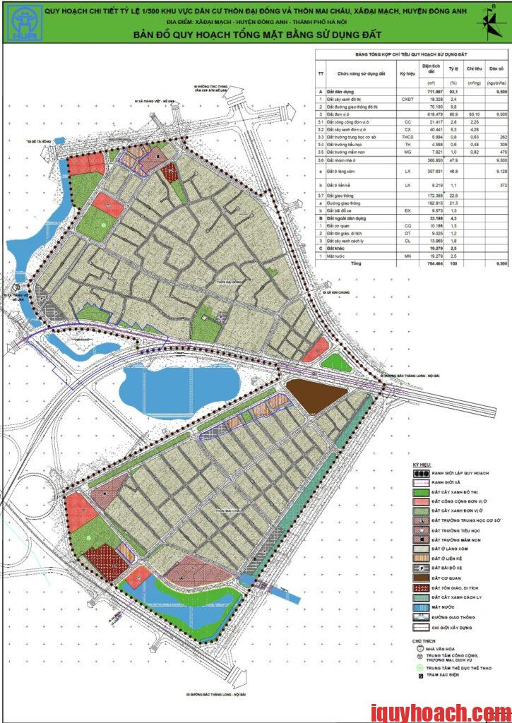
Quyết đinh số 13748/QĐ-UBND ngày 04/11/2022 quy hoạch 1/500 thôn Mạch Lũng Link tải bản đồ quy hoạch thôn Mạch Lũng: https://drive.google.com/drive/folders/13osgiK9wrth07r3ePkl_jl7Q9fGCR4-Z?usp=sharing
Danh sách quy hoạch tại xã Thiên Lộc, Thành phố Hà Nội Link tải bản đồ quy hoạch xã Thiên Lộc: https://drive.google.com/file/d/1IsgGCW71tyQ4GzACNVE9ztu8Rz1fuFXZ/view?usp=sharing Quy hoạch 1/500 khu tái định cư X2 Kim Chung 2. Quy hoạch Khu đô thị mới Kim Chung tỷ lệ 1/500 3. Quy hoạch 1/500 thôn Nhuế xã Thiên Lộc 4. Quy […]


